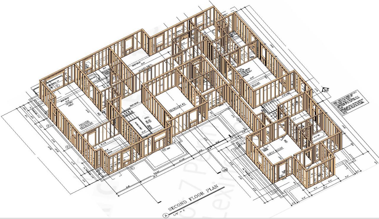
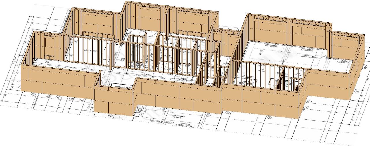
Ofrecemos una completa gama de servicios de construcción en madera
Nuestro equipo cuenta con varios años de experiencia en la industria. Podemos ofrecerles desde servicios de ingeniería, asesorías y dibujos hasta ventas de maquinarias de corte de madera, para que pueda realizar el proyecto de tus sueños utilizando uno de los sistemas constructivos mas sostenibles y prácticos.
¡Somos la mejor elección en las áreas inmediata y de los alrededores! Sin importar la etapa de construcción en que esté, ya sea en los primeros borradores o después de la compra de los materiales, contamos con un equipo para ayudarle a tiempo y dentro del presupuesto. No dude en contactarnos para solicitar una cotización, siempre estaremos encantados de contestar sus preguntas y le prometemos que no quedará decepcionado.



















